MARÍA PEDRAZA 30
Cambio de uso de edifico industrial a residencial (Coliving)
¿Qué pasaría si un edificio industrial olvidado en Madrid pudiera transformarse en un espacio que revitalizara la vida urbana?
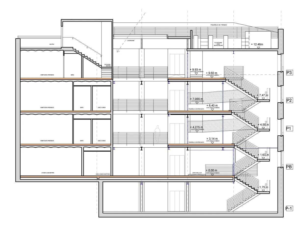
Nuestro proyecto en la calle María Pedraza 30, en el distrito de Tetuán, Madrid, es un claro ejemplo de cómo la arquitectura moderna puede dar una segunda vida a edificios industriales. El edificio, que anteriormente albergaba una fábrica de radiadores, ha sido convertido en un espacio de coliving diseñado para jóvenes, con áreas comunes y privadas que combinan funcionalidad y estética.
El éxito de la intervención radica en aprovechar al máximo las preexistencias del edificio: su estructura metálica de pilares y vigas, y sus techos de bovedillas cerámicas a la catalana. En lugar de imponer una nueva estructura, nos centramos en realzar estos elementos industriales, manteniendo una coherencia con el carácter del espacio original.
El coliving que hemos creado responde a las demandas de vivienda asequible y flexible, con zonas de coworking, áreas de estudio, cocinas compartidas y espacios de interacción. Las habitaciones privadas cuentan con baño propio, zonas de estudio y descanso, brindando una solución eficiente y atractiva para las nuevas generaciones.
Al dar una segunda vida a este tipo de edificios, no solo preservamos su valor patrimonial, sino que también contribuimos a la creación de ciudades más dinámicas y sostenibles. Proyectos como MARÍA PEDRAZA 30 son un claro ejemplo de cómo la rehabilitación arquitectónica puede transformar el entorno urbano, al mismo tiempo que ofrece oportunidades rentables para promotores.
¿Qué otros edificios industriales podrían convertirse en espacios vibrantes y modernos? En ARKin, estamos comprometidos con la innovación y el desarrollo de soluciones arquitectónicas que responden a los retos contemporáneos de las ciudades.
PD: Si necesitas estudiar un edificio industrial para su cambio de uso o deseas conocer más sobre nuestro trabajo en la rehabilitación de edificios industriales y su cambio de uso, no dudes en ponerte en contacto con nosotros . ¡Llámanos!














