Ir al contenido principal

PALAFOX

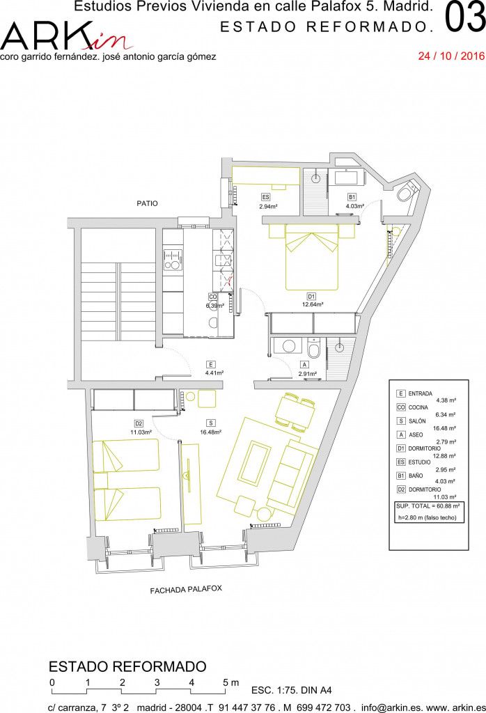
Piso (Madrid-centro)

ARKin recibe el encargo de un inversor para reformar un piso en el Centro de Madrid. El planteamiento es un piso, para gente joven, con dos habitaciones y un baño, que tenga algo especial, que llame la atención, para que sea más atractiva su imagen, y por tanto más fácil y rentable su posterior venta.

En el planteamiento de la distribución se logran sacar dos baños, uno de ellos en suite para la habitación principal.

ARKin plantea una reforma al cliente con una cocina de cristal al entrar, por donde entra la luz. La entrada se plantea como la carta de presentación del piso, joven, algo atrevido en su forrado rojo de Lacobel, en el interior de la cocina.

Los acabados del resto del piso son suaves y claros. Laminado de suelo acabado roble, con el nudo marcado, pintura y zócalos blancos, con una variante de color humo en el salón. Armarios vestidos, con forrado interior en melamina acabado haya.

Baños blancos, doblando el mismo porcelánico del suelo en la pared del lavabo.

Fotos realizadas por: David Calaveras.