RESIDENCIAL FRESNO DE LA VEGA
PARCELA CON PROYECTO DE VIVIENDA UNIFAMILIAR
ARKin presenta un proyecto-promoción de vivienda unifamiliar en PINAR DEL REY.
Si estás interesado en adquirir una vivienda unifamiliar de planta nueva en Madrid, contacta con nosotros sin ningún tipo de compromiso.
La parcela se sitúa en la calle Fresno de la Vega, en una zona tranquila, de casas en su mayoría unifamiliares, al lado de la parada de metro de PINAR DEL REY. Esta zona en alza de la capital se verá revalorizada tras la operación urbanística de Madrid Norte. La parcela se encuentra en el cinturón comprendido entre la M-30 y la M-40, gozando de una excelente red de comunicaciones tanto para transporte privado como público, ya que, además de tener conexión de metro y autobuses, también se encuentra cerca de la estación de tren de Chamartín, y posee una gran oferta de dotaciones educativas y deportivas en la zona.
Dado el alto precio de la vivienda, sobre todo en las zonas más céntricas de la capital, los barrios situados fuera de la M-30 representan un valor al alza, ya que permiten tener una casa más grande y de mayor calidad. Nos proporcionan un estilo de vida más cómodo pero manteniendo la conexión con el centro de la ciudad gracias a las redes de transporte público.
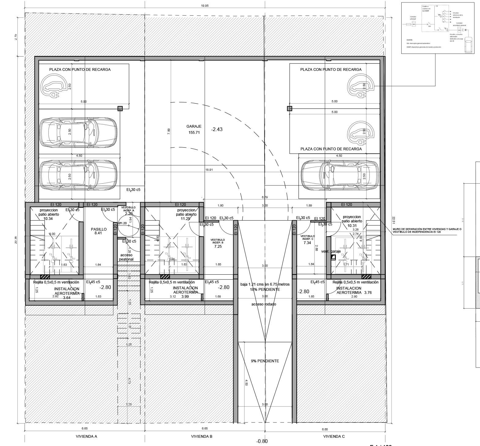
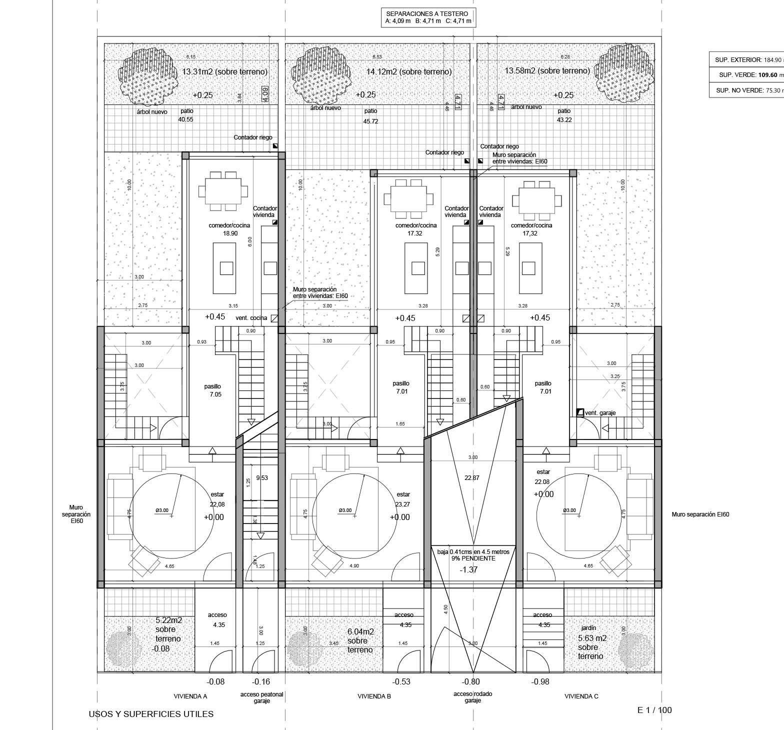
Se diseñan 3 viviendas pareadas de 170 m2, cada uno sobre una parcela de 150 m2. Las viviendas cuentan con un garaje común, además de jardín individual. Las viviendas tienen 2 plantas + ático sobre rasante y una planta sótano. Jardín delantero de 10 m² y jardín trasero de 45 m² aproximadamente. El proyecto contempla Aerotermia para la calefacción y el agua cliente, con depósito de acumulación y calefacción invisible por suelo radiante.














